Professor: Jane Greenwood
Duration: Spring 2012
Location: Yerevan, Armenia
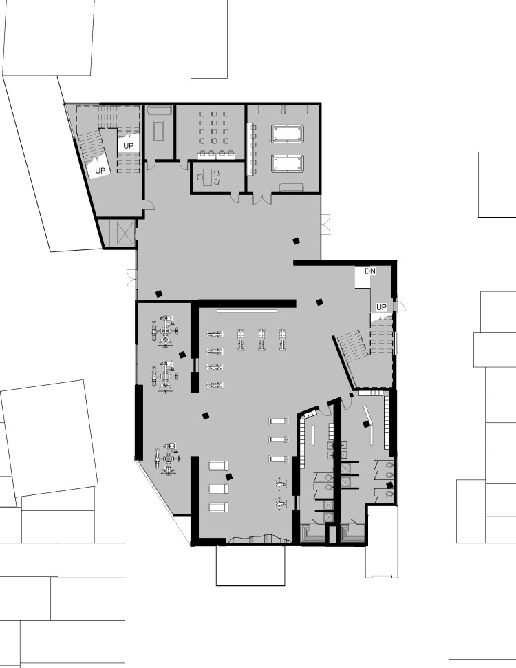
An existing but poorly-maintained gym in Yerevan, Armenia called for a massive renovation and expansion. Studies into both the social and material culture of the region reveal a history of bricolage and piecemeal architecture; this, along with budget constraints, led to the requirement of phased construction, starting with partial demolition of the existing structure.
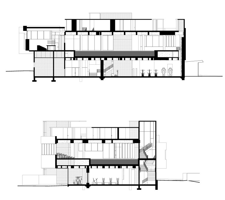
Computational design was used as a generative tool early in the design process. The given programmatic needs of the building were modeled as blocks and deployed into a series of overlapped massing models. These models were then studied both for their overall form and their intersected spaces.

Overlapping and juxtaposition in the new design physically enhances this layering, drawing the complex qualities of intersected and semi-transparent spaces to the forefront of the project.

Ultimately, the form of the gym is maintained as a set of discrete spaces. This helps the building to more accurately scales to the scale of the surrounding context. Furthermore, its construction is better suited to the bricolage style of building typical of the region.

Finally, it enables the three levels of the building to reorient based on varying needs: The first level adapts to the grid of the existing structure; the second level turns slightly to meet the axis of approaching visitors; and finally, the third level reorients again to take advantage of views to the surrounding mountains.
The center serves as more than a gym, acting as a location for rest and recuperation alongside physical excitement and action. Different programmatic areas of the facility are connected visually, physically, and audibly, offering diversity in both privacy and experiential quality.








